Projecten
Project
Grave gebouw A
Jeugd, zorg & wonen
Onderwijs
Werken
Particulier
Monumenten
Haalbaarheidsstudies
Objecten
Advies
Bouwmanagement
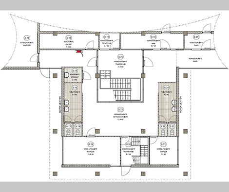
Begane grond nieuw
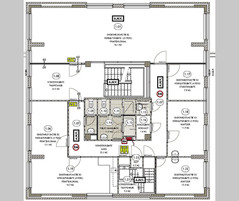
Eerste verdieping nieuw
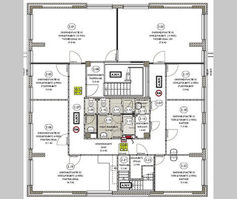
Tweede verdieping nieuw
1 - 7
<
>
BURO VAN ASSELDONK - BURO@BUROVANASSELDONK.NL - 0493-529877
Omschrijving
Bij de tijdelijke Paljaslocatie op het terrein van Sensis in Grave dienden de nodige onderwijsvoorzieningen gerealiseerd te worden. Daartoe hebben wij een leegstaand woongebouw van drie verdiepingen op eenvoudige wijze omgebouwd tot onderwijslocatie.
Werkzaamheden
ontwerp, bouwtekeningen, overleg gemeente en brandweer, vergunningen, prijsvorming bouwteam, directievoering uitvoering