Projecten
Project
Uitbreiding Rijksmonument Roermond
Jeugd, zorg & wonen
Onderwijs
Werken
Particulier
Monumenten
Haalbaarheidsstudies
Objecten
Advies
Bouwmanagement
Studie maquette
Studie maquette
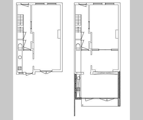
Plattegrond oud en nieuw
Gevels oud en nieuw
Detail bestektekening
Achtergevel oud
Achtergevel nieuw
8 - 13
<
>
BURO VAN ASSELDONK - BURO@BUROVANASSELDONK.NL - 0493-529877
Omschrijving
Een aanbouw ter uitbreiding van een woning in een gesloten bouwblok. Het gehele bouwblok heeft de status van rijksmonument. Het gevaar bestaat dat bij uitbreiding van een woning met een aanbouw het middelste gedeelte van de plattegrond donker en daardoor weinig bruikbaar wordt. Dit is bij dit project ondervangen door het aanbrengen van een lichtstraat tussen oorspronkelijke bouwvolume en de aanbouw. Op die manier ontstaat ook een heldere overgang van monumentale bouw naar de nieuwe uitbouw. Wanden en dak van de uitbouw zijn opgevat als zelfstandige, los van elkaar bestaande schijven. Kozijnen van duurzaam geproduceerd accoyahout, blank gelakt.
De discussie met monumentenzorg spitste zich toe op de vraag welke deel van de oorspronkelijke achtergevel gesloopt mocht worden ten behoeve van de nieuwe aanbouw. Daar is tenslotte een voor alle partijen acceptabel compromis in bereikt.
Werkzaamheden
ontwerp, overleg monumentenzorg, bestek + bouwtekeningen, vergunningen, aanbesteding