Projecten
Project
Verbouw voormalige pastorie Deurne
Jeugd, zorg & wonen
Onderwijs
Werken
Particulier
Monumenten
Haalbaarheidsstudies
Objecten
Advies
Bouwmanagement
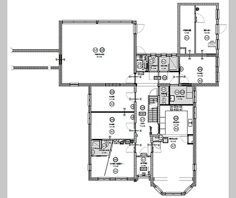
Begane grond nieuw
Eerste verdieping nieuw
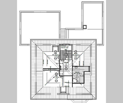
Tweede verdieping nieuw
4 - 15
<
>
BURO VAN ASSELDONK - BURO@BUROVANASSELDONK.NL - 0493-529877
Omschrijving
De voormalige pastorie is op basis van een eerder door ons uitgevoerde haalbaarheidsstudie verbouwd tot een open groepswoning voor jongeren. Ons buro heeft de complete planvoorbereiding, prijsvorming en uitvoeringsbegeleiding gedaan. Het pand is voor een deel opnieuw ingedeeld op basis van de nieuwe functie en de zolderverdieping is bewoonbaar gemaakt. Het pand stond op de nominatie om opgenomen te worden op de gemeentelijke monumentenlijst. Getracht is om zoveel mogelijk originele onderdelen te behouden of in oorspronkelijke staat terug te brengen. Brandveiligheid en installatietechniek waren belangrijke thema’s. Zo is het gehele pand uitgerust met een mechanisch ventilatiesysteem met WTW, zonder dat dit ook maar ergens storend in het zicht komt.
Werkzaamheden
ontwerp, bouwtekeningen, vergunningen, prijsvorming bouwteam, directievoering uitvoering