Projecten
Project
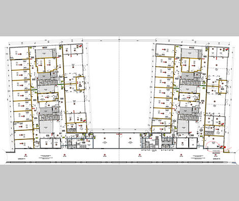
Paljas paviljoens Grave
Jeugd, zorg & wonen
Onderwijs
Werken
Particulier
Monumenten
Haalbaarheidsstudies
Objecten
Advies
Bouwmanagement
Schetsplan
Bestektekening
3 - 12
<
>
BURO VAN ASSELDONK - BURO@BUROVANASSELDONK.NL - 0493-529877
Omschrijving
Nadat bleek dat het eerste project voor gesloten jeugdzorg een groot succes was werden wij gevraagd om mee te werken aan de realisatie van een tweede project in de regio den Bosch. Gezien de tijdsdruk ging het vooralsnog om een tijdelijke locatie in een bestaand gebouw.
Voor verschillende objecten hebben wij daarop haalbaarheidsstudies gedaan; van een leegstaand klooster, AZC, brandweerkazerne, etc. Om diverse redenen vielen deze af. Tenslotte bleek een grote locatie van een blindeninstituut in Grave, waar een deel van de gebouwen leeg was komen te staan, wel realiseerbaar.
In verschillende gebouwen op het terrein werden tijdelijke woonvoorzieningen voor 40 jongeren, plus kantoorruimtes, onderwijsvoorzieningen en sportvoorzieningen gerealiseerd. Aangezien het een tijdelijke locatie betrof moest het budget beperkt blijven. Toch moest de locatie natuurlijk beschikken over alle noodzakelijke veiligheidvoorzieningen.
De tijdsdruk waaronder het project gerealiseerd moest worden was enorm. Ons buro tekende niet alleen voor het ontwerp en planuitwerking, maar coördineerde en begeleide ook de gehele uitvoering, tot en met de inrichting. Uiteraard viel ook de budgetbewaking van de bouw onder onze verantwoordelijkheid.
Werkzaamheden
conceptontwikkeling, haalbaarheidsstudie, ontwerp, bouwtekeningen, vergunningen, overleg gemeente en brandweer, prijsvorming bouwteam, directievoering uitvoering, bouwmanagement