Projecten
Project
Agrarisch zorgbedrijf
Jeugd, zorg & wonen
Onderwijs
Werken
Particulier
Monumenten
Haalbaarheidsstudies
Objecten
Advies
Bouwmanagement
1 - 7
<
>
BURO VAN ASSELDONK - BURO@BUROVANASSELDONK.NL - 0493-529877
Omschrijving
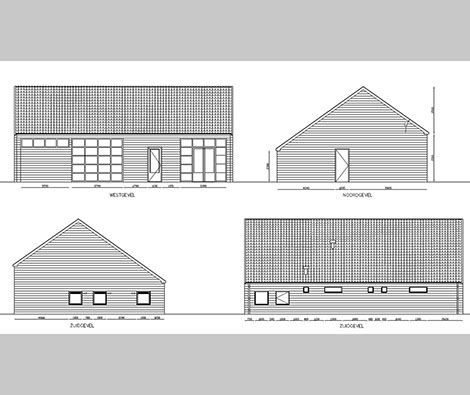
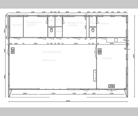
Het project is de eerste fase van de nieuwbouw voor een agrarisch zorgbedrijf. In het ontwerp is al rekening gehouden met een latere uitbreiding. In het ontwerp is gebruik gemaakt van het bouwsysteem van een bedrijf gespecialiseerd in de bouw van houten stallen. In overleg met de leverancier is in afwijking van het systeem de voorgevel naar binnen gevouwen. Door een traditionele aannemer en diverse installateurs is de in- en afbouw verzorgd.
Werkzaamheden
ontwerp, bouwtekeningen, vergunningen, prijsvorming bouwteam, directievoering uitvoering