Projecten
Project
Verbouwing woning Deurne (2)
Jeugd, zorg & wonen
Onderwijs
Werken
Particulier
Monumenten
Haalbaarheidsstudies
Objecten
Advies
Bouwmanagement
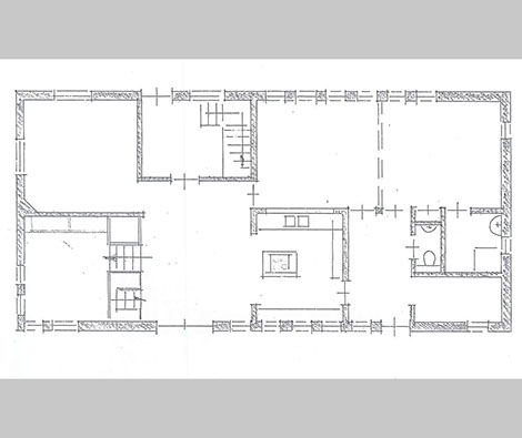
Schetsplan variant
2 - 4
<
>
BURO VAN ASSELDONK - BURO@BUROVANASSELDONK.NL - 0493-529877
Omschrijving
Verbouwing van een voormalige boerderij. Het stalgedeelte is bij de woonruimte getrokken. De gevels van het stalgedeelte waren door de vele verbouwingen in het verleden flink gehavend. Gekozen is om hier alle ramen en deuren te verwijderen en te vervangen door een reeks identieke smalle raamkozijnen in voor- en achtergevel. Het metselwerk is aangeheeld en het geheel opnieuw gevoegd. De keuken is aan de tuinzijde gesitueerd. Een langgerekt, smal raam boven het aanrecht geeft via de aangrenzende ruimte toch zicht op de straatzijde.
Werkzaamheden
ontwerp, bouwtekeningen