Projecten
Project
Verbouwing kantoor BJB
Jeugd, zorg & wonen
Onderwijs
Werken
Particulier
Monumenten
Haalbaarheidsstudies
Objecten
Advies
Bouwmanagement
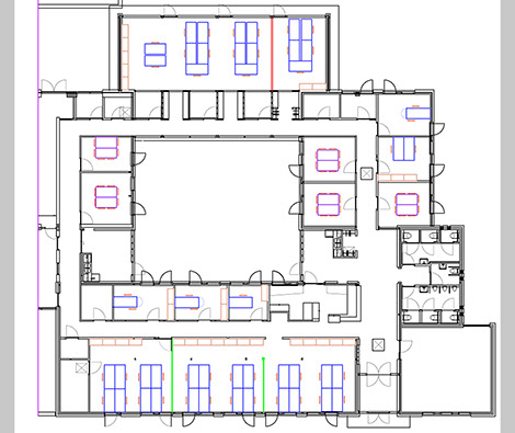
Plattegrond nieuw
2 - 7
<
>
BURO VAN ASSELDONK - BURO@BUROVANASSELDONK.NL - 0493-529877
Omschrijving
Het project betreft de verbouwing en uitbreiding van het hoofdkantoor van een zorginstelling. De bestaande locatie was verouderd en had een sterk naar binnen gericht karakter. Voorafgaand aan dit plan werd door ons een onderzoek uitgevoerd naar de werkplekbehoefte van de organisatie. Wij kregen dit verzoek omdat men ad hoc de ene verbouwing na de andere bleef doen zonder dat hier een lange termijnvisie aan ten grondslag lag. Het onderzoek leidde tot een gevarieerd en uitgebalanceerd ruimtelijk programma met grote en kleine vergaderruimtes, grotere ruimtes met flexplekken, kleinere ruimtes met vaste werkplekken, concentratieruimtes, e.a. Voorts wenste men dat het nieuwe gebouw uitdrukking zou geven aan een sfeer van dynamiek, openheid en samenwerking. Het plan voorziet in een complete herinrichting van de bestaande bouw plus een uitbreiding. Kenmerkend is een geheel rondlopende ontsluiting met een besloten patio in het midden. Glaspuien en –deuren verschaffen de nodige transparantie. Bij de grotere ruimtes met flexplekken ontbreken deuren.
Werkzaamheden
ontwerp, bestek + bouwtekeningen, vergunningen, prijsvorming bouwteam, directievoering uitvoering