Projecten
Project
Verbouwing voormalig hotel Wilhelmina
Jeugd, zorg & wonen
Onderwijs
Werken
Particulier
Monumenten
Haalbaarheidsstudies
Objecten
Advies
Bouwmanagement
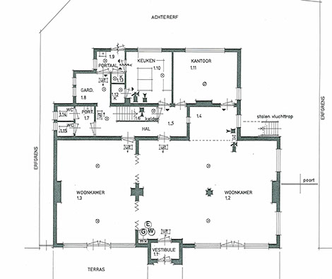
Begane grond nieuw
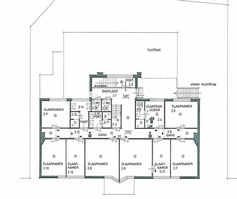
Eerste verdieping nieuw
Tweede verdieping nieuw
4 - 9
<
>
BURO VAN ASSELDONK - BURO@BUROVANASSELDONK.NL - 0493-529877
Omschrijving
Een voormalig hotel werd opgeknapt en verbouwd tot woonvoorziening voor AMA’s (alleenstaande minderjarige asielzoekers) met 24 uurs-begeleiding. Naast het wegwerken van flink wat achterstallig onderhoud moest veel aandacht besteed worden aan de veiligheid in brede zin. We hebben geprobeerd om het charmante, oorspronkelijke karakter van het hotel dat in de loop der jaren behoorlijk verloren was gegaan zo veel mogelijk in ere te herstellen.
Werkzaamheden
ontwerp, bestek + bouwtekeningen, prijsvorming bouwteam, directievoering uitvoering