Projecten
Project
Verbouwing voormalige boerderij Neerkant
Jeugd, zorg & wonen
Onderwijs
Werken
Particulier
Monumenten
Haalbaarheidsstudies
Objecten
Advies
Bouwmanagement
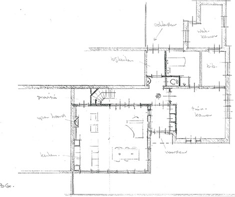
Schetsplan begane grond
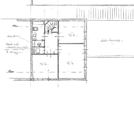
Schetsplan verdieping
3 - 5
<
>
BURO VAN ASSELDONK - BURO@BUROVANASSELDONK.NL - 0493-529877
Omschrijving
De verbouwing van een deel van een voormalige boerderij tot woning. De boerderij was in het verleden al gesplitst in twee delen. Het achterste stalgedeelte was slechts ten dele en weinig samenhangend verbouwd tot woning. Het gebouw is grotendeels opnieuw ingedeeld. De voormalige hooizolder is bij de woning getrokken. Een lichtstraat brengt daglicht tot diep in het gebouw. Het dak van de schuur is gedeeltelijk opgetrokken waardoor een beschut terras op de verdieping ontstaat.
Werkzaamheden
ontwerp, bestek + bouwtekeningen, vergunningen, aanbesteding, directievoering uitvoering