Projecten
Project
Snelle straat den Bosch
Jeugd, zorg & wonen
Onderwijs
Werken
Particulier
Monumenten
Haalbaarheidsstudies
Objecten
Advies
Bouwmanagement
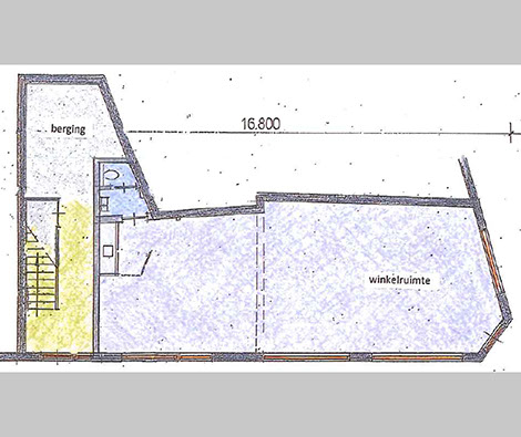
Schetsplan begane grond
Schetsplan eerste verdieping
Schetsplan tweede verdieping
Schetsplan derde verdieping
4 - 4
<
>
BURO VAN ASSELDONK - BURO@BUROVANASSELDONK.NL - 0493-529877
Omschrijving
Studie naar de mogelijkheden om een pand in de binnenstad van den Bosch te verbouwen tot winkelruimte op de begane grond en wooneenheden op de verdiepingen. Daarbij zijn verschillende scenario’s onderzocht waarvan voor enkele varianten vervolgens ook de verbouwkosten werden begroot.
Werkzaamheden
ontwerp, kostenraming