Projecten
Project
Verbouwing monumentale pastorie Helmond
Jeugd, zorg & wonen
Onderwijs
Werken
Particulier
Monumenten
Haalbaarheidsstudies
Objecten
Advies
Bouwmanagement
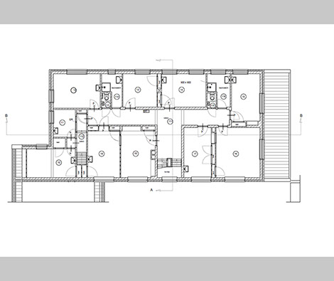
Begane grond nieuw
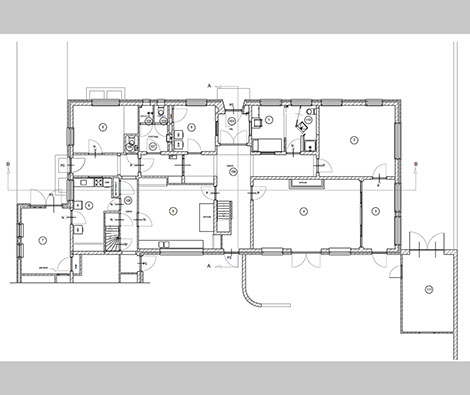
Verdieping nieuw
3 - 7
<
>
BURO VAN ASSELDONK - BURO@BUROVANASSELDONK.NL - 0493-529877
Omschrijving
De pastorie is een gemeentelijk monument, gelegen naast een kerk welke een rijksmonument is. De kerk is tegenwoordig in gebruik als gezondheidscentrum. De vraag was om de pastorie geschikt te maken voor een woongroep van 10 jongeren met 24-uursbegeleiding. De woongroep diende verdeeld te zijn in een eerste en tweede fase, welke onafhankelijk van elkaar moesten kunnen functioneren. De tweede fase is bedoeld voor jongeren die weer bijna op eigen benen kunnen staan en alleen begeleiding op afstand nodig hebben. De tweede fase beschikt over eigen keuken, sanitair en aparte ingang. De voormalige kluis van de pastorie is ingezet als douchecabine in de badkamer van de groepsleiding. Voor het gebouw hebben wij later ook nog een aantal restauratiewerkzaamheden begeleid; onder andere: herstel glas in lood, houten dakconstructie, voegwerken, kozijnen, tegelvloeren, stucwerk, diverse metaalwerken.
Werkzaamheden
ontwerp, overleg monumentenzorg, bestek + bouwtekeningen, vergunningen, prijsvorming bouwteam, directievoering uitvoering